Book the $500 Design Jumpstart to define scope, layout, finish direction, and realistic budget before construction begins.
Delano Designs helps Atlanta homeowners turn early ideas into a real plan—so contractor pricing is cleaner, permit planning is easier, and expensive surprises are reduced before the build starts.
• In-home consultation + LiDAR measurements
• Scope and layout discussion
• Early finish and material guidance
• Realistic budget range
• $500 credited toward full design





Most Remodels Get Expensive Before Construction Even Starts
Projects usually do not go wrong because one contractor made one mistake. They go wrong because layout, scope, and decisions were still unclear when pricing began. That is when bids vary, missing work gets buried in allowances, and changes during construction become expensive.
Why homeowners start with Delano.
• Scope is defined before contractor pricing begins
• Layout issues are solved before they become jobsite problems
• Finish direction is aligned to a realistic budget
• Permit-ready drawings can be created when the project requires them
• Kitchen, bathroom, basement, addition, or exterior remodels
• Want clarity before hiring a contractor
• Typically investing around $35k+ into the project
• Want cleaner bids, fewer change orders, and stronger execution
We take 3–5 new design starts per month (limited availability).
New construction or remodeling outside the footprint (additions/bump-outs/exterior expansions) is custom-scoped and will require a site survey
Architectural Drawings at $7/SqFt for whole home projects

$500 Design Jumpstart
• In-home consultation
• LiDAR measurements
• Scope review
• Layout direction
• Early finish guidance
• Realistic budget range
• Clear recommendation on next steps
If you move forward into full design, the $500 is credited toward that next phase.
Permit-Ready Drawings — When Your Project Requires Them
Pricing:
• Bathroom permit-ready drawings after design: $2,500+
• Kitchen permit-ready drawings after design: $4,500+
• Whole-home architectural drawings: starting at $14,000 for 2,000 sq ft
Kitchen Remodel Design
Design starting at $5,000
• Existing vs. proposed 2D floor plan
• Cabinet plans and elevations
• Material and finish direction
• Documentation to support cleaner contractor bids

Recommended Full-Service Design + Construction Support
Typically 15–25% of total project value
What this includes:
• Full design and layout development
• Permit-ready construction drawings
• Contractor bid leveling and selection support
• Ongoing site involvement during construction
• Design oversight to help ensure the project is executed correctly
Bathroom Design
Starting at $3,500
• Existing vs. proposed 2D floor plan
• Mood board direction
• Vanity and shower elevation planning
• Fixture and finish guidance
• Documentation to support more accurate contractor pricing

Optional 3D Renders / AR-VR
Visualize your space in more detail before construction begins.
Pricing:
$750 per space
Step 1:
Feasibility call — scope, timeline, and budget fit
Step 2:
Home consultation + LiDAR measurement
Step 3:
Existing → proposed plans
Step 4:
Finish decisions + schedules
Step 5:
Permit-ready construction documents
Step 6:
Full-service support during construction































When your project requires construction documents for approval, bidding, or execution, Delano creates permit-ready plans that define what is being built before the work begins.
Included:
• Existing and proposed layouts
• Wall modifications and structural changes
• Cabinetry and built-in elements
• Electrical layout design intent
• Plumbing fixture planning and design intent
• Elevations and construction details
• Coordination required to support pricing and permitting
We coordinate with engineers as needed when the project requires additional structural, civil, HVAC, electrical, or plumbing documentation.
Each step of the design process helps create a more accurate project estimate for the build phase. When scope, layout, and selections are defined before pricing begins, contractors are much more likely to bid the same job instead of making different assumptions.
• Clearer scope for cleaner bids
• Better comparison between contractors
• Fewer pricing gaps hidden in allowances
• Less risk of expensive changes after construction starts
We can assist with contractor sourcing, bid leveling, and scope comparison when your project calls for it.

You can hire Delano Designs for design only, or continue into full-service support during construction. For the right projects, Delano stays involved to help ensure the build aligns with the design through site visits, drawing and selection reviews, progress monitoring, and homeowner reporting.
The licensed contractor contracts and executes the construction work. Delano’s role is to help protect the design, support communication, and reduce drift between the plan and the final result.
Book the $500 Design Jumpstart
If you are planning a kitchen, bathroom, basement, addition, or exterior remodel in Atlanta, the smartest first step is clarity. We come to your home, measure the space, define scope, discuss layout and finish direction, and give you a realistic budget range based on your actual project.
Included:
• In-home consultation
• LiDAR measurements
• Scope and layout discussion
• Early finish and material guidance
• Realistic budget range
• Clear next-step recommendation
If you move forward into full design, the $500 is credited toward that next phase.
Best fit for Atlanta homeowners planning projects starting around $35k+.
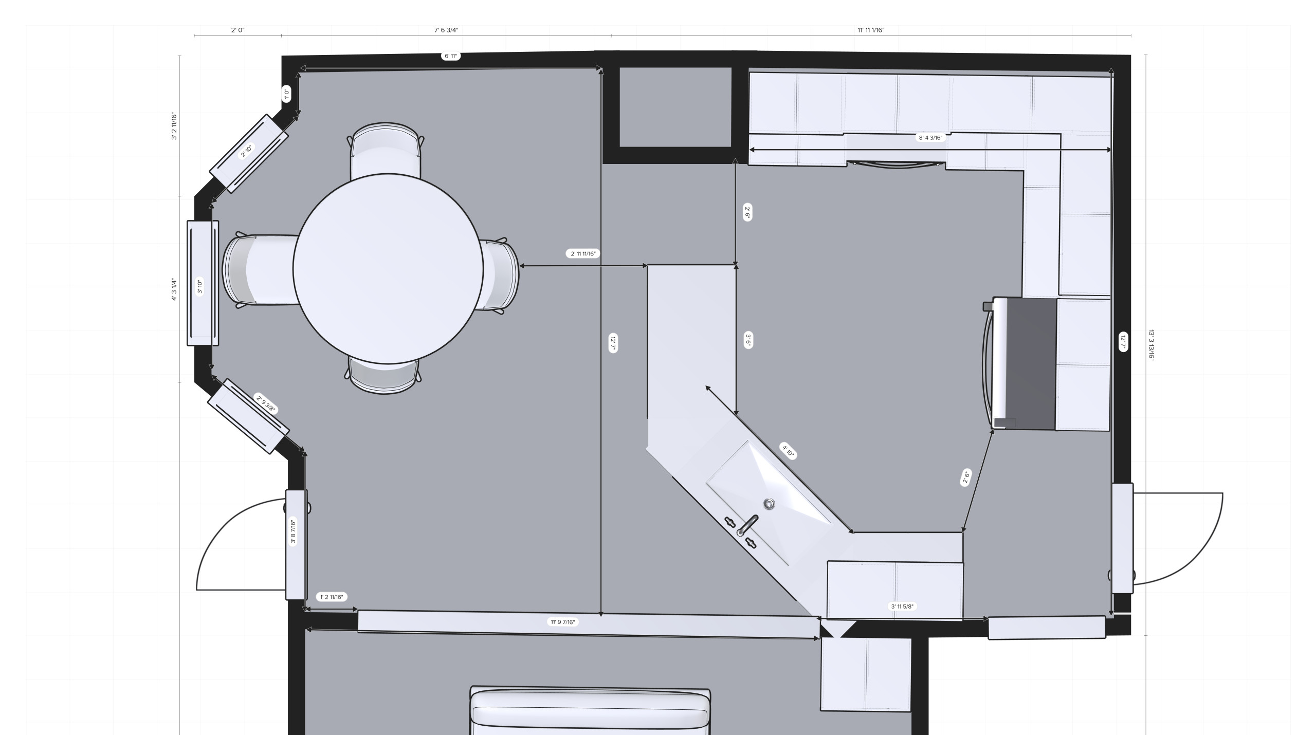
Initial Consultation & Measurements
Initial Measurements - Bathroom

Initial Measurements - Kitchen

Existing Conditions

Renders - Bathroom

Renders - Kitchen

Proposed Conditions
Construction Administration- Bathroom
Construction Administration- Kitchen

Full Floorplan Render

Mood Board - Bathroom

Mood Board - Kitchen

Living room -Essential Design Package

Bathroom -Comprehensive Design Package

Kitchen -Comprehensive Design Package
Any construction contracting work described on this site will be performed by a duly licensed commercial or residential general contractor. Delano Designs LLC acts as design professional and build-phase coordinator / observer, and does not itself provide general contracting services unless otherwise licensed.
This satisfies the requirement that design-build offers clearly indicate that contracting must be done by a licensed GC.
