Skip to main content
Home
Design + Permit-Ready Plans
Portfolio
eBooks
About
Testimonials
Connect
Home
Design + Permit-Ready Plans
Portfolio
eBooks
About
Testimonials
Connect
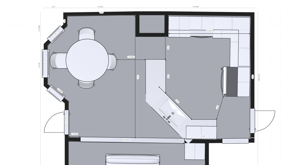
Modern Kitchen Layout change